賃料 |
350万円 |
共益費/管理費 |
- |
|---|---|---|---|
所在地 |
摂津市東別府4丁目 |
号室 |
|
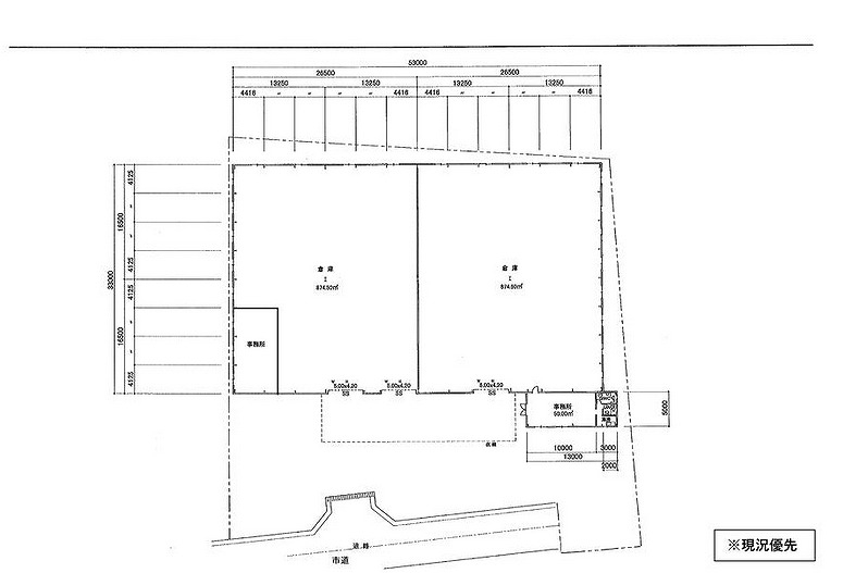
面積 |
1,814m²(548.73坪) |
坪単価 |
6,378円 |
敷金 |
2,100万円 |
礼金 |
700万円 |
保証金 |
- |
敷引_償却 |
- |
建物構造 |
鉄骨造 |
階迄/階 |
1階/1階建 |
築年月 |
1987/11(築38年) |
交通 |
大阪モノレール線南摂津駅まで 徒歩21分
大阪府摂津市 |
お電話でのお問い合わせ
物件番号:43058
お電話でお問い合わせの際は、物件番号をお伝えください。
0120-68-6180
営業時間:9:00AM - 7:00PM
定休日:毎週土日
ポイント
POINT
別途消費税、家賃保証加入要、業種相談、視認性良好、駐車場あり、2026年6月空き予定、ロードサイド、軒高約9m、第1種住居地域、敷地約800坪
物件詳細DETAIL
現況 |
居住中 |
引渡時期 |
相談 |
|---|---|---|---|
保険等 |
要 |
保証会社 |
|
契約期間 |
更新料 |
||
取引態様 |
仲介 |
仲介手数料 |
1ヶ月 |
諸費用 |
駐車場 |
空有 |
|
情報更新日 |
2026年02月06日 |
次回更新予定日 |
2026年02月07日 |
※掲載されている物件データが現状と異なる場合は現状を優先します。
周辺地図MAP
株式会社ハウスゲートCOMPANY
所在地 |
大阪府枚方市岡南町11-19 ハウスゲートビル2F |
||
|---|---|---|---|
免許番号 |
大阪府知事免許(5)第48737号 |
||
会員 |
(公社)全日本不動産協会
(公社)不動産保証協会
(公社)近畿圏不動産流通機構
|
||
電話番号 |
0120-68-6180 |
FAX番号 |
072-845-5399 |
営業時間 |
9:00AM - 7:00PM |
定休日 |
毎週土日 |
