
賃料 |
28万円 |
共益費/管理費 |
- |
---|---|---|---|
所在地 |
尼崎市南武庫之荘10丁目 |
号室 |
|
面積 |
119m²(35.99坪) |
坪単価 |
- |
敷金 |
- |
礼金 |
56万円 |
保証金 |
36万円 |
敷引_償却 |
- |
建物構造 |
鉄骨造 |
階迄/階 |
1階~1階迄/1階建 |
築年月 |
1989/06(築36年) |
交通 |
阪急神戸線武庫之荘まで 徒歩23分
兵庫県尼崎市 |
お電話でのお問い合わせ
物件番号:47616
お電話でお問い合わせの際は、物件番号をお伝えください。
0120-68-6180
営業時間:10:00AM - 7:00PM
定休日:毎週土日
ポイント
POINT
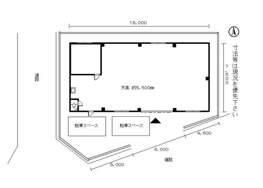
家賃保証加入要、業種相談、飲食不可、トイレ専用、流し台、上下水道委、電気、、駐車場あり(2台)、ロードサイド、角地物件、24時間使用可、現状渡し、天井高さ約6.5m
物件詳細DETAIL
現況 |
引渡時期 |
||
---|---|---|---|
保険等 |
要 |
保証会社 |
|
契約期間 |
2年 |
更新料 |
|
取引態様 |
仲介 |
仲介手数料 |
1ヶ月 |
諸費用 |
駐車場 |
2台 |
|
情報更新日 |
2025年10月17日 |
次回更新予定日 |
2025年10月18日 |
※掲載されている物件データが現状と異なる場合は現状を優先します。
周辺地図MAP

株式会社ハウスゲートCOMPANY
所在地 |
大阪府枚方市岡南町11-19 ハウスゲートビル2F |
||
---|---|---|---|
免許番号 |
大阪府知事免許(5)第48737号 |
||
会員 |
(公社)全日本不動産協会
(公社)不動産保証協会
(公社)近畿圏不動産流通機構
|
||
電話番号 |
0120-68-6180 |
FAX番号 |
072-845-5399 |
営業時間 |
10:00AM - 7:00PM |
定休日 |
毎週土日 |