
賃料 |
110万円 |
共益費/管理費 |
- |
---|---|---|---|
所在地 |
豊中市庄内宝町1丁目 |
号室 |
|
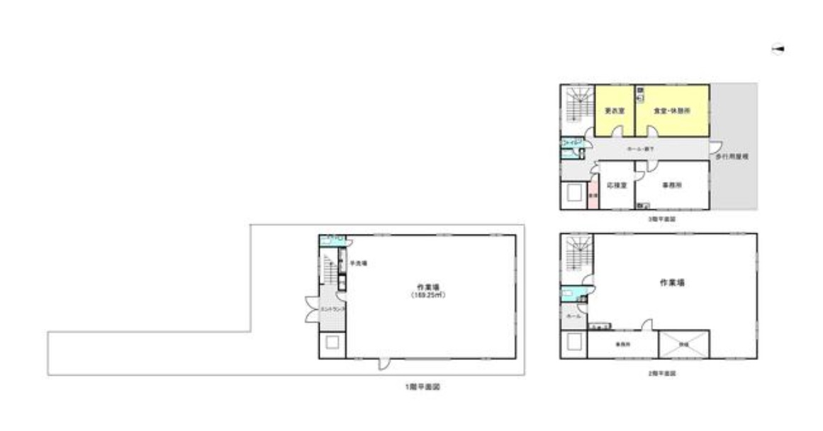
面積 |
526.1m²(159.14坪) |
坪単価 |
- |
敷金 |
- |
礼金 |
- |
保証金 |
660万円 |
敷引_償却 |
220万円 |
建物構造 |
鉄骨造 |
階迄/階 |
1階~3階迄/3階建 |
築年月 |
2004/03(築21年) |
交通 |
阪急宝塚線庄内駅まで バス12分
大阪府豊中市 |
お電話でのお問い合わせ
物件番号:47667
お電話でお問い合わせの際は、物件番号をお伝えください。
0120-68-6180
営業時間:10:00AM - 7:00PM
定休日:毎週土日
ポイント
POINT
家賃保証加入要、24時間使用可、業種相談、駐車場あり(3台)、(電動シャッター付、クレーンあり、キュービクル、空調システム)残置物扱いメンテは借主負担、1階最高天井高5.9m 2階最高天井高5m 3階最高天井高3. 6m 1階シャッタ- 4000X4000
物件詳細DETAIL
現況 |
空家 |
引渡時期 |
相談 |
---|---|---|---|
保険等 |
要 |
保証会社 |
|
契約期間 |
更新料 |
||
取引態様 |
仲介 |
仲介手数料 |
1ヶ月 |
諸費用 |
駐車場 |
3台可 |
|
情報更新日 |
2025年10月17日 |
次回更新予定日 |
2025年10月18日 |
※掲載されている物件データが現状と異なる場合は現状を優先します。
周辺地図MAP

株式会社ハウスゲートCOMPANY
所在地 |
大阪府枚方市岡南町11-19 ハウスゲートビル2F |
||
---|---|---|---|
免許番号 |
大阪府知事免許(5)第48737号 |
||
会員 |
(公社)全日本不動産協会
(公社)不動産保証協会
(公社)近畿圏不動産流通機構
|
||
電話番号 |
0120-68-6180 |
FAX番号 |
072-845-5399 |
営業時間 |
10:00AM - 7:00PM |
定休日 |
毎週土日 |