賃料 |
154万円 |
共益費/管理費 |
- |
|---|---|---|---|
所在地 |
大阪市西淀川区福町3丁目 |
号室 |
|
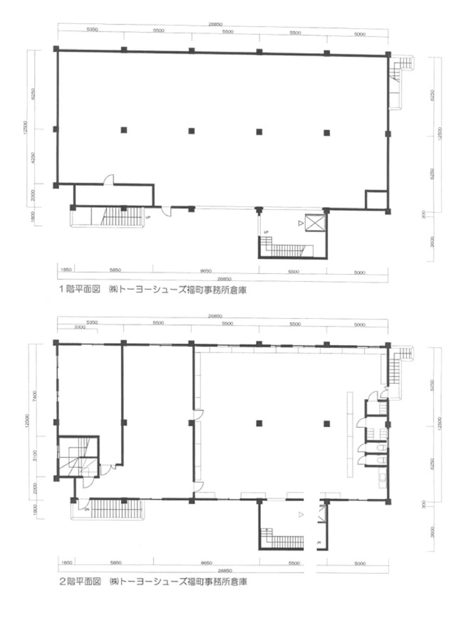
面積 |
661.75m²(200.17坪) |
坪単価 |
7,693円 |
敷金 |
12ヶ月 |
礼金 |
- |
保証金 |
- |
敷引_償却 |
30% |
建物構造 |
RC |
階迄/階 |
1階~2階迄/2階建 |
築年月 |
1986/03(築40年) |
交通 |
阪神なんば線福まで 徒歩5分
大阪府大阪市西淀川区 |
お電話でのお問い合わせ
物件番号:47759
お電話でお問い合わせの際は、物件番号をお伝えください。
0120-68-6180
営業時間:9:00AM - 7:00PM
定休日:毎週土日
ポイント
POINT
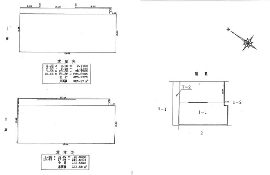
駅近!!、電気、上下水道、トイレ2か所、都市ガス、、駐車スペース12台、検査済証無し、業種相談、※引き渡し条件・時期はご相談・リフト、内装残置は御相談、返還保証金については、契約月数で均等分割した金額を、毎月賃料よりリースバック致します 1階328.17㎡ 2階333.58㎡
物件詳細DETAIL
現況 |
賃貸中 |
引渡時期 |
2026/06 上旬 |
|---|---|---|---|
保険等 |
要 |
保証会社 |
|
契約期間 |
10年 |
更新料 |
|
取引態様 |
仲介 |
仲介手数料 |
1ヶ月 |
諸費用 |
駐車場 |
有 |
|
情報更新日 |
2026年03月06日 |
次回更新予定日 |
2026年03月07日 |
※掲載されている物件データが現状と異なる場合は現状を優先します。
周辺地図MAP
株式会社ハウスゲートCOMPANY
所在地 |
大阪府枚方市岡南町11-19 ハウスゲートビル2F |
||
|---|---|---|---|
免許番号 |
大阪府知事免許(5)第48737号 |
||
会員 |
(公社)全日本不動産協会
(公社)不動産保証協会
(公社)近畿圏不動産流通機構
|
||
電話番号 |
0120-68-6180 |
FAX番号 |
072-845-5399 |
営業時間 |
9:00AM - 7:00PM |
定休日 |
毎週土日 |
