賃料 |
49.5万円 |
共益費/管理費 |
- |
|---|---|---|---|
所在地 |
豊中市西泉丘2丁目 |
号室 |
|
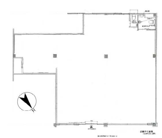
面積 |
163m²(49.3坪) |
坪単価 |
11,000円 |
敷金 |
450万円 |
礼金 |
- |
保証金 |
- |
敷引_償却 |
30% |
建物構造 |
鉄骨造 |
階迄/階 |
1階~1階迄/2階建 |
築年月 |
1990/00(築36年) |
交通 |
北大阪急行桃山台まで 徒歩21分
大阪府豊中市 |
お電話でのお問い合わせ
物件番号:47801
お電話でお問い合わせの際は、物件番号をお伝えください。
0120-68-6180
営業時間:9:00AM - 7:00PM
定休日:毎週土日
ポイント
POINT
家賃保証加入要、業種相談、スケルトン、トイレ専用(残置物)、空調システム(残置物)、分電盤(残置物)、◆水道料金は貸主側にて検針し賃料と共に請求◆電気・ガス→各供給会社と直接契約◆ゴミ・廃棄物処理→直接契約 、現状渡し
物件詳細DETAIL
現況 |
空家 |
引渡時期 |
相談 |
|---|---|---|---|
保険等 |
要 |
保証会社 |
|
契約期間 |
2年 |
更新料 |
|
取引態様 |
仲介 |
仲介手数料 |
1ヶ月 |
諸費用 |
駐車場 |
前面駐車スペース有り |
|
情報更新日 |
2026年03月06日 |
次回更新予定日 |
2026年03月07日 |
※掲載されている物件データが現状と異なる場合は現状を優先します。
周辺地図MAP
株式会社ハウスゲートCOMPANY
所在地 |
大阪府枚方市岡南町11-19 ハウスゲートビル2F |
||
|---|---|---|---|
免許番号 |
大阪府知事免許(5)第48737号 |
||
会員 |
(公社)全日本不動産協会
(公社)不動産保証協会
(公社)近畿圏不動産流通機構
|
||
電話番号 |
0120-68-6180 |
FAX番号 |
072-845-5399 |
営業時間 |
9:00AM - 7:00PM |
定休日 |
毎週土日 |
