賃料 |
24万円 |
共益費/管理費 |
5,000円 |
|---|---|---|---|
所在地 |
茨木市庄1丁目 |
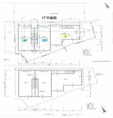
号室 |
A,B |
面積 |
80.17m²(24.25坪) |
坪単価 |
9,896円 |
敷金 |
- |
礼金 |
3ヶ月 |
保証金 |
- |
敷引_償却 |
- |
建物構造 |
木造 |
階迄/階 |
1階~2階迄/2階建 |
築年月 |
2025/12(1年未満) |
交通 |
JR京都線JR総持寺まで 徒歩5分
阪急京都線総持寺駅まで 徒歩10分
大阪府茨木市 |
お電話でのお問い合わせ
物件番号:47892
お電話でお問い合わせの際は、物件番号をお伝えください。
0120-68-6180
営業時間:9:00AM - 7:00PM
定休日:毎週土日
ポイント
POINT
別途消費税、家賃保証加入要、業種相談、飲食不可、トイレ専用、空調システム、駅近、視認性良好、危険物・騒音・振動・臭気を伴う業種は不可
物件詳細DETAIL
現況 |
空家 |
引渡時期 |
相談 |
|---|---|---|---|
保険等 |
要 |
保証会社 |
|
契約期間 |
更新料 |
||
取引態様 |
仲介 |
仲介手数料 |
1ヶ月 |
諸費用 |
駐車場 |
無 |
|
情報更新日 |
2026年02月26日 |
次回更新予定日 |
2026年02月27日 |
※掲載されている物件データが現状と異なる場合は現状を優先します。
周辺地図MAP
株式会社ハウスゲートCOMPANY
所在地 |
大阪府枚方市岡南町11-19 ハウスゲートビル2F |
||
|---|---|---|---|
免許番号 |
大阪府知事免許(5)第48737号 |
||
会員 |
(公社)全日本不動産協会
(公社)不動産保証協会
(公社)近畿圏不動産流通機構
|
||
電話番号 |
0120-68-6180 |
FAX番号 |
072-845-5399 |
営業時間 |
9:00AM - 7:00PM |
定休日 |
毎週土日 |
