賃料 |
45万円 |
共益費/管理費 |
- |
|---|---|---|---|
所在地 |
大阪市淀川区野中北1丁目 |
号室 |
|
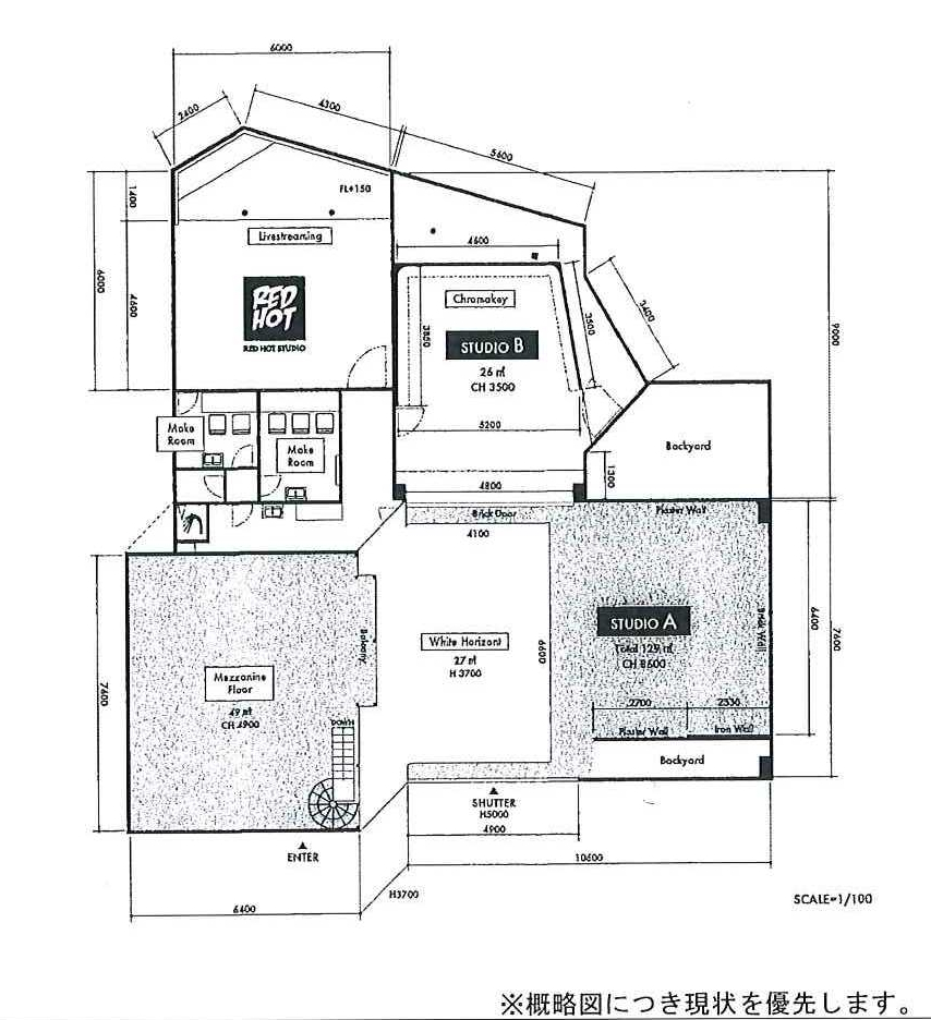
面積 |
254m²(76.83坪) |
坪単価 |
- |
敷金 |
3ヶ月 |
礼金 |
3ヶ月 |
保証金 |
- |
敷引_償却 |
- |
建物構造 |
階迄/階 |
||
築年月 |
1965/00(築61年) |
交通 |
阪急宝塚線三国駅まで 徒歩11分
大阪府大阪市淀川区 |
お電話でのお問い合わせ
物件番号:48011
お電話でお問い合わせの際は、物件番号をお伝えください。
0120-68-6180
営業時間:9:00AM - 7:00PM
定休日:毎週土日
ポイント
POINT
家賃保証加入要、業種相談、写真スタジオ、電気、都市ガス、、上下水道、、24時間使用可、現状渡し
物件詳細DETAIL
現況 |
賃貸中 |
引渡時期 |
2026/04 上旬 |
|---|---|---|---|
保険等 |
保証会社 |
||
契約期間 |
更新料 |
||
取引態様 |
仲介 |
仲介手数料 |
1ヶ月 |
諸費用 |
駐車場 |
||
情報更新日 |
2026年02月19日 |
次回更新予定日 |
2026年02月20日 |
※掲載されている物件データが現状と異なる場合は現状を優先します。
株式会社ハウスゲートCOMPANY
所在地 |
大阪府枚方市岡南町11-19 ハウスゲートビル2F |
||
|---|---|---|---|
免許番号 |
大阪府知事免許(5)第48737号 |
||
会員 |
(公社)全日本不動産協会
(公社)不動産保証協会
(公社)近畿圏不動産流通機構
|
||
電話番号 |
0120-68-6180 |
FAX番号 |
072-845-5399 |
営業時間 |
9:00AM - 7:00PM |
定休日 |
毎週土日 |
